您的位置: 首页 > 球速官网 > 球速体育APP

球速体育- 球速体育官方网站- APP下载上海壹号院 (售楼处) 官方 上海壹号院销售中心 环境户型价格地址楼盘详情配套电话交房时间配套电话交房时间

发布日期:2026-01-22 20:27:00 浏览次数:

  球速体育,球速体育官方网站,球速体育APP下载上海壹号院·锦华里地处大新天地核心节点,既传承700年海派历史文化沉淀,同时链接历史与未来的黄金占位,见证百年繁华传奇永续。

  上海壹号院位于中华路和复兴东路交汇处,属于老西门板块,西至木桥街、北孔家弄、吉祥弄,南至复兴东路、东至松雪街,北至方浜中路。

  距离新天地直线米,作为蓝绿丝带规划上的关键节点,随着大新天地东进南拓战略逐步实施,通过水景、绿地和公共空间,串联新天地、豫园、外滩三大世界级商业版图。

  未来,整个片区的商业规模将突破约28万方,商办总体量达到约150万方,商业配套、产业资源、生态规划的能级与量级得到新突破。预计未来围绕本地块约1.1平方公里内将吸引约7000个亿级家庭的聚集,成就上海乃至中国亿级家庭浓度最高的区域。

  本案地处上海核心风貌区板块第二象限,约1km范围内有豫园、文庙、新天地等城市坐标,融汇东西文化,是上海最早集商贸、金融、文化于一体的政治、经济、文化中心。

  作为上海中心城区12个历史文化风貌区之一,水系脉络润泽、华商名流与世家望族云集,街、巷、里、弄之间,蕴藏上海恒贵的人文记忆,其所代表的海派文化具有不可替代的独特性。

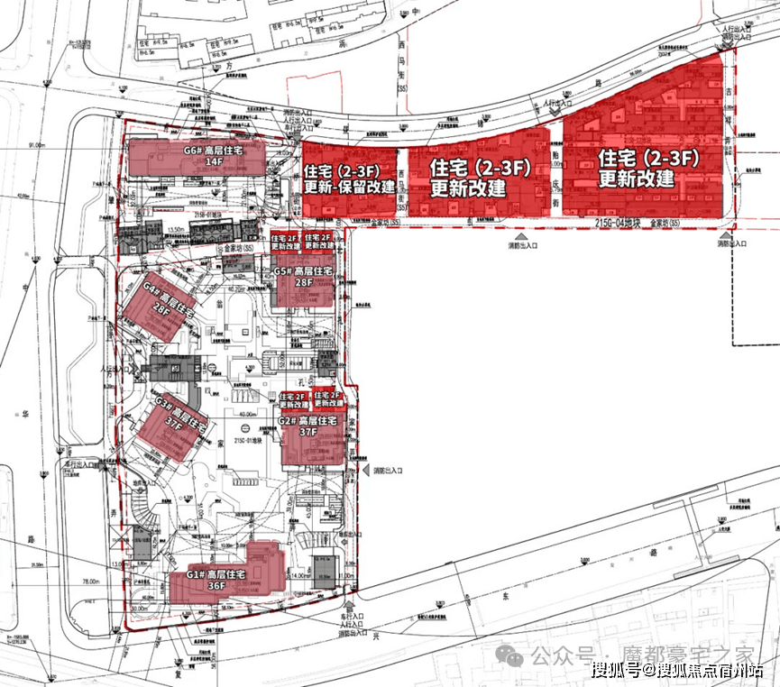
  上海壹号院整体分为一期、二期开发,总占地面积约9.6万㎡,总建筑面积约43万㎡,住宅总可售面积约为22.8万㎡。由6栋14-37高层、151席联排及合院以及蓝绿丝带独栋商业组成。

  项目产品类型包括海派高层/风貌联排合院/风貌商业:海派高层533套(建面约200-1000㎡,主力户型约300-400㎡);风貌联排合院151套(建面约250-1200㎡,主力户型约300-500㎡);风貌商业17套。

  上海壹号院集萃中科院院士郑时龄、华东建筑设计研究院宿新宝等风貌专家团队以及gad蒋愈、CCD、无间等全球设计大师资源,历时10余年精耕细作。2023年未曾面世即受邀参加威尼斯双年展,以上海风貌保护的至高成就,代表中国向世界展示伟大城市风貌更新的成功典范。

  坐落于荟萃海派先进建筑样式的“历史豪宅区”:这里毗邻中西文化的枢纽之地,建筑呈现中西文化融合、多元荟萃的风格,涵盖公馆、里弄的形态特征,糅合传统江南园邸、近代公馆等多元风格,呈现海纳百川的特点。

  秉承以“最大化保留风貌肌理”为原则,在历史底纹之上打造新天地和风貌区里的当代上海故里。 通过保护修缮、保留改造、更新改建三大更新手法,萃取打造「江南园邸」「近代中西合璧」「近代装饰艺术」「现代主义」四大建筑风格,深度挖掘建筑基因,以专属建筑立面及设计语言,量身定制呈现 “一户一策” 的合院式居住体验。

  萃取提纯地块原有海派建筑的符号,融合如山墙、卷草、拱门、窗花、雕花、门楣等百余个历史构件元素等,通过保留、转译等形式,实现海派符号的经典溯源,演绎每一栋建筑的风格和历史底色。

  区别于市场上多数的行列式产品(统一制式排布),上海壹号院作为少有的大合院体系下的风貌庭院别墅区,原真保留了丰富的街巷生活肌理、多元化生活场景,以极具特色的建筑规划、景观庭院打造原汁原味的海派庭院生活。

  契合中国传统院落居住哲学理念,以“外紧内松”空间设计手法,对风貌别墅空间尺度进行当代拓新,让空间服务于生活。外紧-通过外部百年巷道肌理活化、建筑错落排布景筑交融,打造美而精的体验;内松-宅院内以多重庭院、立体花园、大落地窗等实现室内尺度拓新,给家人更多停留空间、打造建筑会呼吸的松弛感。

  呼应刻在国人骨子里的庭院情节,户型设计中创造性的加入多重、立体花园概念(多重开放空间如庭院/露台/阳台/采光井等),庭院层层为退、与露台相呼应,在平面和空间上创造出多层次亲近自然的可能。

  在空间打造上,通过多重庭院及露台、地下室、阳台等多维空间,极大地拓展住宅的使用功能与体验。通过庭院、地下(采光井)、宅间(大面积玻璃窗、阳台、露台)等有机结合实现多重采光系统,最大化保障空间通透性、确保采光与通风,打造会呼吸的风貌墅。

  在新天地这片土地之上,以极具稀缺的“独立门牌号”为建筑和宅院赋予独特的身份铭牌。以独立多重入户方式,注重归家仪式感打造和宅院私密性。多数合院除主入口外,次入口搭配庭院,出入口连接庭院,在丰富建筑空间层次的同时打造从“公共(街道)→ 半私密(庭院)→ 完全私密(室内)”的归家入户仪式感。

  贯彻“中意西景、中正西融”景观理念,以中式花园隐居哲学核心,传承中式里弄记忆、融合西式花园情调。提取场地四种建筑和场域风格特征,营造中西风貌交叠的别墅花园景观,演绎当代海派风情里弄人居。

  从城市界面到节点空间,由大到小打造“四重空间感受”,营造中西和鸣的感官体验。从华而美的城市道路、糅而谐的景观轴线,美而精的归家巷弄、雅而巧的节点空间,每一处场景皆实现私密与艺术的交融,感受城市繁华与归家宁静的交叠。

  在内部景观的营造上,精心雕琢「藏幽望舒」、「暗香疏影」、「繁花浮动」等多种绿化主题,实现了空间上的自然过渡,并通过多维度提取风貌意境,以现代造园手法融会贯通,打造和而不同的中西风貌交融的海派花园景观。

  项目引入融创归心礼御高端服务体系,配置“社区运营官、园艺工程师、高级工程师和社区运营顾问”4个新工种,为生活提供全时守护。同时基于项目风貌保护特殊性,引入拥有古建养护经验的团队,以精细化维护、科学管养等理念实现风貌建筑每一处细节养护。

  融创物业,在2024年外滩壹号院满意度达100%,更成为2025杭州亚运会官方服务商,以国际标准,兑现每一份生活承诺。

  项目的交通便捷度堪称 “顶流配置”,立体路网无缝衔接城市核心与对外枢纽。轨交方面,与地铁 8 号线 分钟即可抵达,一站可换乘 9 号线 号线,形成三轨交汇的黄金网络 ——3 站直达南京东路,5 站抵人民广场,7 站达陆家嘴,轻松串联城市核心商圈。自驾出行同样高效,紧邻内环高架、南北高架两大城市主干道,10 分钟直达虹桥国际机场,15 分钟抵达浦东国际机场,无论是日常通勤还是商务出行都无需奔波。这种 “地铁 + 高架 + 空港” 的多维交通组合,在顶豪项目中也属罕见,线 分钟掌控上海芯”。

  项目被四大顶级商圈环绕,构建起 “步行即达” 的高端消费矩阵。与新天地直线 米,步行可达新天地时尚购物中心、湖滨道购物中心,汇聚全球奢侈品牌旗舰店与潮流业态;步行 5 分钟即入豫园商圈,既能感受老城厢的烟火底蕴,又能享受现代商业便利;1 公里内更覆盖外滩、南京路步行街、人民广场三大城市地标商圈,恒隆广场、K11 艺术购物中心、IFC 等顶奢商业体举步即达,米其林餐厅、精品超市、艺术展馆等多元业态一站式满足。这种 “左手顶奢繁华,右手老城烟火” 的商业资源,在上海内环已形成不可复制的稀缺性。

  针对高净值家庭的教育需求,项目周边构建起从幼儿园到中学的全龄段优质教育体系。公立教育方面,复兴东路三小、上海实验小学、蓬莱路二小等区重点乃至市重点学校环伺,其中多所学校以师资雄厚、办学底蕴深厚著称;民办教育同样亮眼,康德双语、永昌学校等知名民办名校形成补充,为孩子提供多元升学选择。优质教育资源的密集分布,搭配步行可达的便捷距离,让家长无需为孩子升学奔波,真正实现 “近校而居,书香为伴”(具体对口以教育部门划分为准)。

  医疗保障资源堪称 “天花板级别”,2 公里辐射范围内聚集多所全国知名三甲医院。瑞金医院、仁济医院西院、上海九院等顶尖医疗机构均在便捷可达范围内,这些医院不仅科室齐全、设备先进,更在心血管、外科、皮肤科等领域拥有全国领先的诊疗水平。同时,周边社区卫生服务中心密布,可快速解决日常就医、疫苗接种等基础需求,形成 “日常诊疗在家门口,疑难重症有顶尖保障” 的健康防护网,为家人健康提供坚实支撑。

  项目兼具深厚文化底蕴与稀缺生态资源,构筑起独特的人文居住氛围。生态方面,步行可达太平桥公园、复兴中路等城市绿肺,其中太平桥公园以开阔草坪与水景景观成为日常休闲的优选,而沿黄浦江的滨江步道更是散步慢跑的绝佳去处。文化方面,毗邻一大会址、豫园老街等历史地标,身处上海 12 处风貌保护区中唯一保留超百万平方米历史肌理的区域,梧桐掩映的历史街区与陆家嘴金融城的天际线形成独特视野反差,实现 “推窗见文脉,漫步遇历史” 的人文居住体验。

  在楼市全面分化的阶段,一个城市的房价抗跌韧性和交易活跃度高低,直接体现城市的竞争力强弱。上海楼市的坚挺,代表了各类资金的流向以及对上海市场未来的乐观预期。

  上海壹号院2024年8月首期开盘入市,至今整整一年,合计推售5次,实现了五开五捷,累计销售额约240亿元。

  从价格维度来看,项目首期入市均价约17万/㎡,之后成交均价一路稳步上扬,最新的五批次成交均价达到19.8万/㎡,套均总价约7300万元,是近年来卖得快、品质高、卖出口碑的顶级高端盘。

  随着核心资产价值的不断上涨以及核心区城市开发几近饱和,以上海壹号院所在新天地板块为代表的核心区,居住圈层也越来越纯粹。新天地东拓之后,未来从新天地到外滩金陵路的1.1平方公里内,将会居住约7000个亿级家庭,是整个上海高净值家庭密度最高的一个区域。上海壹号院是其中面积最大、规划规格最高最完整的标杆社区之一。

  在上海核心地段内拥有顶级商圈、历史风貌区、城市一线景观的席位日益减少的背景下,上海壹号院坐拥新天地、豫园和外滩三大顶级商圈,其地理位置使得项目具备极高的附加值和投资潜力。与此同时,随着上海“蓝绿丝带”建设、新天地东扩等城市更新又进一步提升了其资源密度和区域价值,强化了其城市资源的独一无二特性。

  在高层收官之后,上海壹号院的风貌别墅产品“锦华里”即将亮相,首批次仅有38席,面积涵盖建面约200至990平海派风貌院墅。

  项目邀请泰斗级风貌专家,从老城厢的历史文脉与一幅幅真实生活场景中汲取灵感,历经十余年的心血灌注,在建筑风格与细节设计上倾入匠心,打造了「屋外是历史屋内是当代」、户户是大师定制作品的上海新风貌生活图景,确保每一栋都能成为独一无二的封藏艺术品。

  数据统计,至2035年上海风貌别墅总存量仅占全市住宅约0.2%。其稀缺性,未来将对标老洋房与西郊别墅,已是“非标资产”。

  从供应量来看,未来15年全市新增总量(约198万㎡),与浦西核心区过去100多年形成的存量(约176万㎡)持平。这非普通供应,是提前集中释放。

  2025年,风貌别墅全市销售约300套,占上海7000万+成交的40%。但风貌别墅的又极具分化,上海风貌别墅中售罄的三个盘——翠湖六和、顺昌玖里、恒昌玖里均在新天地版块,呈现越贵越大越好卖现象。其本质原因是核心地段产品结构缺失,高层产品供应远大于别墅,同时顶部购买力没有上限。

  而上海壹号院一期及未来的二期,它是现有规模最大、最具完整性的风貌别墅之一。越具规模,圈层越纯粹。

  上海壹号院坐落于荟萃海派先进建筑样式的“历史豪宅区”,呈现出一种交织杂糅的城市肌理与建筑风格——这里,不同时期的住宅、东西方的建筑语汇、居住与商业的功能、公共与私密的院落,历史性地层叠、以大规模的体量,更多元化的风格,成就海派风貌建筑教科书。

  作为上海“鼻祖级别”的风貌,上海壹号院就代表中国的城市更新样本,出现在了意大利威尼斯双年展。

  深厚历史文化积淀+最强专家天团+最强设计天团的10余年打磨,项目团队将每一栋建筑的个体差异化做足。

  一方面,不同类型的风貌建筑,都将从立面形制开始,各自拥有一套高度定制化的专项方案。

  另一方面,专家们从地块中提取出来的山墙、卷草、拱门、门楣、雕花、窗花等百余件经典海派历史构件,也将通过保留、转译等形式,充分基于每一栋建筑的风格和历史底色,实现海派符号的定制化演绎,甚至深入到每个组团的巷弄之中,基于组团建筑的特色和风格,实现从入口开始的全维度定制景观和公共空间,项目通过“一户一策”设计筑就独一无二的产品属性。

  在上海壹号院,推出的这38套风貌中,都拥有着全上海都屈指可数的独立门牌号,甚至不少房源拥有以路为命名的门牌。

  新天地持续东拓,未来从新天地到外滩金陵路的约1.1平方公里内,将会居住约7000个亿级家庭,将是整个上海高净值家庭密度最高的一个区域。而上海壹号院是其中面积最大、圈层最纯粹、规划规格最高最完整的高端社区之一。

  随着超300亿的翠湖七期规划落定与建设,涵盖超高层及风貌商业别墅,将是从新天地到大新天地的一个完整的融合过度,未来有带来越来越多高净值人群将投资与居住眼光聚焦在新天地。

  区别于市场上多数的行列式产品(统一制式排布),上海壹号院作为少有的大合院体系下的风貌庭院别墅区,原真保留了丰富的街巷生活肌理、多元化生活场景,以极具特色的建筑规划、景观庭院打造出原汁原味海派庭院生活,成为专属家族的“大隐隐于市”的生活桃源。

  几乎可以肯定的说,上海市中心核心地段很难再碰到如此大规模的完整风貌项目。

  事实上,越是经济周期承压,真正的优质资产越能穿越波动,在风险筛选中脱颖而出。稀缺性永远是资产配置的至高信条。而上海壹号院无论是其绝对的核心地段,还是更符合现代人居的大合院体系风貌产品,都具备强烈的不可复制性。返回搜狐,查看更多